Элемент крепления к стене Вулкан VOR 120x240
* Изображение представленного на сайте товара носит ознакомительный характер и может незначительно отличаться от оригинала.
** Предложение не является публичной офертой.
*** Минимальная сумма заказа 3000 рублей.
- Описание
- Характеристики
- Отзывы0
- Доставка
- Оплата
- Монтаж
Элемент крепления к стене овального сечения. Одноконтурная система овального сечения из высоколегированной стали аустенитной нержавеющей стали. Данная дымоотводящая система спроектирована ведущими специалистами завода ВУЛКАН совместно с европейскими партнерами из Германии и Швейцарии на основе многолетнего опыта проектирования, производства, монтажа и эксплуатации. Все элементы и детали системы производятся на самом современном в России оборудовании по технологиям последнего поколения. Тщательный подбор и контроль используемых материалов, а также высокая квалификация персонала позволяют производить продукцию высочайшего качества.
Область применения: Отведение продуктов сгорания от котлов, печей, каминов, дизель-генераторов, работающих на твердом, жидком и газообразном видах топлива, как для бытового, так и промышленного назначения с рабочими параметрами дымовых газов.
- номинальная температура до 750°C;
- максимальная (краткосрочная) температура 1000°C;
- давление внутри системы до 1000 Па (повышенное/пониженное);
- основной контур системы устойчив к агрессивной и кислотной среде.
Конструктивные особенности:
- Материал основного контура: нержавеющая сталь AISI 321 (AISI 316 L, AISI 310- по запросу) толщиной 0,5-1,0 мм;
- Раструбно-профильное соединение элементов систем с усиленным зигом для повышения жесткости и газоплотности узлов стыковки;
- Расширенный номенклатурный ряд стандартных элементов позволяет собрать любую конфигурацию дымоходной системы;
- Высокая геометрическая точность всех частей дымоотводящей системы;
- Повышенная прочность конструкции при минимальном весе.
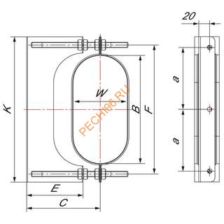
| Сечение дымохода | 120х240 мм |
| Производитель | Вулкан |
| Страна производства | Россия |
| Тип | Одноконтурные (моно) |
| Толщина металла | 0,5мм, 0,8мм |
| Материал (внутри/снаружи) | Нержавейка 321 |
| По типу оборудования | Для буржуйки, Для банных печей, Для каминов, Для печей, Для твердотопливных котлов, Для газовых котлов, Для дизельных котлов |
| По назначению | Для дома, Для бани, Для сауны |
Элемент крепления к стене Вулкан VOR 120x240 отзывы
Способы доставки по Екатеринбургу и области:
При покупке товаров на сумму от 10000 рублей стоимость доставки составит:
- по Екатеринбургу — бесплатно;
- в Кольцово, Арамиль, В. Пышму, Березовский — 1000 рублей;
- по Свердловской области, либо по Уральскому региону — из расчета 20 руб/км (в оба конца);
- по Свердловской области, по Уральскому региону, по России, по Казахстану — транспортными компаниями КИТ, Деловые Линии, с оплатой доставки в их представительствах по действующим у них расценкам.
При покупке на сумму до 10000 рублей стоимость доставки составит:
- по Екатеринбургу — 600 рублей;
- в Кольцово, Арамиль, В. Пышму, Березовский — 1500 рублей;
- по Свердловской области, либо по Уральскому региону — из расчета 20 руб/км (в оба конца) + 1000 рублей;
- по Свердловской области, по Уральскому региону, по России, по Казахстану — транспортными компаниями КИТ, Деловые Линии, с оплатой доставки в их представительствах по действующим у них расценкам +600 рублей.
Разгрузка и подъем товара осуществляется силами покупателя.
Самовывоз: г. Екатеринбург, ул. Фурманова, 126 (Бизнес-центр FM), офис 411 (4 этаж).
Оплата в Екатеринбурге и области принимается следующими способами:
- Оплата наличными при получении товара — от курьера или в пункте выдачи товара.
- Онлайн оплата — дебетовыми и кредитными картами на сайте.
- Оплата на карту Сбербанка — применяется для физических лиц при дистанционной оплате.
- Оплата по безналичному расчету — применяется для физических и юридических лиц. После зачисления денежных средств на расчетный счет, товар и полный пакет документов будут доставлены Вам согласованным способом в оговоренные сроки. Работаем с НДС!
- Покупка товаров в кредит — нажмите кнопку "Купить в кредит" в карточке товара и оформите заявку на кредит. Подробности у менеджеров.
Печи96 выполняет монтаж отопительного оборудования «под ключ» в Екатеринбурге и области. Все работы ведутся по нормам пожарной безопасности и СНиП, с применением сертифицированных материалов.
Этапы монтажа
- Выезд инженера и замер — консультация, оценка условий установки, рекомендации по размещению.
- Смета — расчет материалов и работ, фиксированная цена после согласования.
- Доставка — оборудование и комплектующие привозим на объект в день начала работ.
- Монтаж — установка печи, камина или котла, монтаж дымохода, изоляция перекрытий и стен, вывод через кровлю, при необходимости облицовка, короба, декоративная отделка.
- Сдача объекта — проверка работы системы, подписание акта выполненных работ.
Что вы получаете
- безопасную установку с соблюдением норм;
- фиксированную стоимость без скрытых расходов;
- сроки монтажа от 1 до 3 дней (в зависимости от сложности);
- гарантию 1 год на все виды работ;
- возможность сервисного обслуживания.
Чтобы заказать монтаж, оставьте заявку на сайте или позвоните нам по телефону +7 (343) 305-00-25. Инженер согласует удобное время выезда.
Категории: Дымоходы овальные из нержавеющей стали Овальные дымоходы 120х240
Покупатели, которые приобрели Элемент крепления к стене Вулкан VOR 120x240, также купили
Рекомендуем посмотреть
Элемент крепления к стене Вулкан VOR 120x240 купить в Екатеринбурге по выгодной цене 2 990 руб.: подробное описание, характеристики, фото и отзывы реальных покупателей, возможность скачать инструкции по монтажу и подобрать аксессуары
Перед покупкой Элемент крепления к стене Вулкан VOR 120x240 вы можете проконсультироваться со специалистами ПЕЧИ96 по телефону +7 (343) 305-00-25 или закажите обратный звонок на сайте. Интернет-магазин ПЕЧИ96 — это гарантия низкой цены, оперативной доставки по Екатеринбургу, возможность покупки в кредит и качественного клиентского сервиса.






















