* Изображение представленного на сайте товара носит ознакомительный характер и может незначительно отличаться от оригинала.
** Предложение не является публичной офертой.
- Описание
- Характеристики
- Отзывы0
- Доставка
- Оплата
- Монтаж
Угловой камин от компании Supra BELVAL PRIS 80 с топкой SAPHIR 1721. Угловая облицовка. Изготовлена из камня Castillon + красный "rocmarble" Corallin. Вертикальный подъем дверцы, призматическое стекло, система "Чистое стекло", шиберная заслонка, топка с ножками.
Комфортное поднятие дверцы. Дверца поднимается на 45 см. Это не мешает виду на огонь, так как низ дверцы полностью из стекла (без металлического обрамления). Камера горения с тройной оболочкой: Сталь + шамот. Дефлектор дыма INOXIS THR способствует концентрации тепла - Технология IN`AIR. Горение на решетке.
Модуль горения IN`AIR: чтобы соответствовать требованиям современного жилья, топка имеет возможность подключения воздуха с улицы (диаметр 125 мм). Для чистки, фасад открывается горизонтально. Безопасность открытия. Откидное стекло позволяет полностью очистить его от загрязнений.
Преимущества модели:
- Облицовка из натурального камня.
- Вертикальный подъем дверцы.
- Современное оформление чугуна.
- Призматическое стекло.
- Выпускается с ножками.
- Чугунные детали снимаются изнутри топки.
- Топка с двойной стенкой (сопротивляемость перепадам температур и полная герметичность).
- Двойная блокировка дверцы для большей безопасности.
- Шиберная заслонка.
- Система «чистое стекло».
- Полное наслаждение прекрасной картиной горящего пламени.
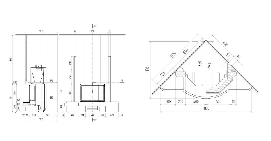
| Способ установки | Угловой |
| Материал топки | Сталь |
| Варочная плита (конфорка) | Нет |
| Материл дверки | Сталь |
| Корпус | Облицовка из камня |
| Вид камня | Мрамор |
| Производитель | Supra |
| Страна производства | Франция |
| Ширина | 1800 мм |
| Глубина, мм | 1294 |
| Высота | 1810 мм |
| Диаметр | 200 мм |
| Выход дымохода | наверх |
| Глубина топки (макс. длина дров), мм | 500 |
| Встроенный теплообменник | Нет |
| Тепловая мощность, кВт | 11 |
| Встроенный шибер | Нет |
| Футеровка | огнеупорный кирпич |
| Тип дверцы | с панорамным стеклом |
| Отапливаемый объем, м3 | 275 |
Дровяной камин Supra BELVAL PRIS 80 с топкой SAPHIR 1721 отзывы
Способы доставки по Екатеринбургу и области:
При покупке товаров на сумму от 10000 рублей стоимость доставки составит:
- по Екатеринбургу — бесплатно;
- в Кольцово, Арамиль, В. Пышму, Березовский — 1000 рублей;
- по Свердловской области, либо по Уральскому региону — из расчета 20 руб/км (в оба конца);
- по Свердловской области, по Уральскому региону, по России, по Казахстану — транспортными компаниями КИТ, Деловые Линии, с оплатой доставки в их представительствах по действующим у них расценкам.
При покупке на сумму до 10000 рублей стоимость доставки составит:
- по Екатеринбургу — 600 рублей;
- в Кольцово, Арамиль, В. Пышму, Березовский — 1500 рублей;
- по Свердловской области, либо по Уральскому региону — из расчета 20 руб/км (в оба конца) + 1000 рублей;
- по Свердловской области, по Уральскому региону, по России, по Казахстану — транспортными компаниями КИТ, Деловые Линии, с оплатой доставки в их представительствах по действующим у них расценкам +600 рублей.
Разгрузка и подъем товара осуществляется силами покупателя.
Самовывоз: г. Екатеринбург, ул. Фурманова, 126 (Бизнес-центр FM), офис 411 (4 этаж).
Оплата в Екатеринбурге и области принимается следующими способами:
- Оплата наличными при получении товара — от курьера или в пункте выдачи товара.
- Онлайн оплата — дебетовыми и кредитными картами на сайте.
- Оплата на карту Сбербанка — применяется для физических лиц при дистанционной оплате.
- Оплата по безналичному расчету — применяется для физических и юридических лиц. После зачисления денежных средств на расчетный счет, товар и полный пакет документов будут доставлены Вам согласованным способом в оговоренные сроки. Работаем с НДС!
- Покупка товаров в кредит — нажмите кнопку "Купить в кредит" в карточке товара и оформите заявку на кредит. Подробности у менеджеров.
Печи96 выполняет монтаж отопительного оборудования «под ключ» в Екатеринбурге и области. Все работы ведутся по нормам пожарной безопасности и СНиП, с применением сертифицированных материалов.
Этапы монтажа
- Выезд инженера и замер — консультация, оценка условий установки, рекомендации по размещению.
- Смета — расчет материалов и работ, фиксированная цена после согласования.
- Доставка — оборудование и комплектующие привозим на объект в день начала работ.
- Монтаж — установка печи, камина или котла, монтаж дымохода, изоляция перекрытий и стен, вывод через кровлю, при необходимости облицовка, короба, декоративная отделка.
- Сдача объекта — проверка работы системы, подписание акта выполненных работ.
Что вы получаете
- безопасную установку с соблюдением норм;
- фиксированную стоимость без скрытых расходов;
- сроки монтажа от 1 до 3 дней (в зависимости от сложности);
- гарантию 1 год на все виды работ;
- возможность сервисного обслуживания.
Чтобы заказать монтаж, оставьте заявку на сайте или позвоните нам по телефону +7 (343) 305-00-25. Инженер согласует удобное время выезда.
Покупатели, которые приобрели Дровяной камин Supra BELVAL PRIS 80 с топкой SAPHIR 1721, также купили
Рекомендуем посмотреть
Дровяной камин Supra BELVAL PRIS 80 с топкой SAPHIR 1721 купить в Екатеринбурге по выгодной цене 654 000 руб.: подробное описание, характеристики, фото и отзывы реальных покупателей, возможность скачать инструкции по монтажу и подобрать аксессуары
Перед покупкой Дровяной камин Supra BELVAL PRIS 80 с топкой SAPHIR 1721 вы можете проконсультироваться со специалистами ПЕЧИ96 по телефону +7 (343) 305-00-25 или закажите обратный звонок на сайте. Интернет-магазин ПЕЧИ96 — это гарантия низкой цены, оперативной доставки по Екатеринбургу, возможность покупки в кредит и качественного клиентского сервиса.


























