Дровяной камин CHAZELLES Lodge с топкой VE1000
* Изображение представленного на сайте товара носит ознакомительный характер и может незначительно отличаться от оригинала.
** Предложение не является публичной офертой.
- Описание
- Характеристики
- Отзывы0
- Доставка
- Оплата
- Монтаж
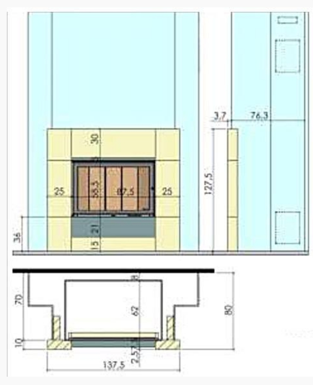
Встроенный камин Chazelles Lodge преобразит Ваш дом в оазис тепла и стиля. Эта полувстроенная облицовка, выполненная из камня Estaillades и синего горного камня, представляет собой воплощение красоты и функциональности. Камин Chazelles Lodge - уникальное сочетание модерна и изысканности, призванное преобразить Ваш дом в оазис роскоши и стиля. Облицовка камина предназначена для полувстроенной установки, что делает ее идеальным выбором для тех, кто хочет сделать камин ключевым элементом домашнего интерьера. Сочетание стилей модерн и арт-нуво делает Lodge универсальным решением для различных дизайнерских концепций.
Фронтальная каминная топка Chazelles VE1000 - стильное и функциональное решение для Вашего дома. С мощностью 7 кВт и инновационными характеристиками, она станет идеальным дополнением для помещений площадью до 175 м3. Chazelles VE1000 обладает автоматической тяговой заслонкой (шибером), контролируемой открыванием дверцы. Это облегчает регулировку процесса горения и упрощает чистку дымохода. Удобный зольный ящик и двигающаяся решетка предотвращают просыпание пепла, и его можно очищать даже во время работы топки.
Преимущества модели:
- Встроенный камин.
- Топка для камина полностью выполнена из высококачественной стали.
- Материалы облицовки высокого качества: камень Estaillades, синий горный камень.
- Дверца открывается вбок.
- Эстетика и практичность: Продуманный дизайн учитывает не только эстетические аспекты, но и практичность использования.
- Система "чистое стекло" для предотвращения оседания грязи и копоти.
- Автоматическая тяговая заслонка (шибер), контролируемая открыванием дверцы.
- Возможность подключения воздуха с улицы.
- Зольный ящик и двигающаяся решетка для удобной очистки.
- Возможность футеровки шамотом и вермикулитом, или шамотом и сталью.
| Способ установки | Встраиваемый |
| Материал топки | Сталь |
| Варочная плита (конфорка) | Нет |
| Материл дверки | Сталь |
| Корпус | Облицовка из камня |
| Производитель | Chazelles |
| Страна производства | Франция |
| Ширина | 1380 мм |
| Глубина, мм | 800 |
| Высота | 1250 мм |
| Масса | 542 кг |
| Диаметр | 230 мм |
| Выход дымохода | наверх |
| Глубина топки (макс. длина дров), мм | 500 |
| Встроенный теплообменник | Нет |
| Тепловая мощность, кВт | 7 |
| Встроенный шибер | Нет |
| Футеровка | вермикулит |
| Тип дверцы | с панорамным стеклом |
| Отапливаемый объем, м3 | 175 |
Дровяной камин CHAZELLES Lodge с топкой VE1000 отзывы
Способы доставки по Екатеринбургу и области:
При покупке товаров на сумму от 10000 рублей стоимость доставки составит:
- по Екатеринбургу — бесплатно;
- в Кольцово, Арамиль, В. Пышму, Березовский — 1000 рублей;
- по Свердловской области, либо по Уральскому региону — из расчета 20 руб/км (в оба конца);
- по Свердловской области, по Уральскому региону, по России, по Казахстану — транспортными компаниями КИТ, Деловые Линии, с оплатой доставки в их представительствах по действующим у них расценкам.
При покупке на сумму до 10000 рублей стоимость доставки составит:
- по Екатеринбургу — 600 рублей;
- в Кольцово, Арамиль, В. Пышму, Березовский — 1500 рублей;
- по Свердловской области, либо по Уральскому региону — из расчета 20 руб/км (в оба конца) + 1000 рублей;
- по Свердловской области, по Уральскому региону, по России, по Казахстану — транспортными компаниями КИТ, Деловые Линии, с оплатой доставки в их представительствах по действующим у них расценкам +600 рублей.
Разгрузка и подъем товара осуществляется силами покупателя.
Самовывоз: г. Екатеринбург, ул. Фурманова, 126 (Бизнес-центр FM), офис 411 (4 этаж).
Оплата в Екатеринбурге и области принимается следующими способами:
- Оплата наличными при получении товара — от курьера или в пункте выдачи товара.
- Онлайн оплата — дебетовыми и кредитными картами на сайте.
- Оплата на карту Сбербанка — применяется для физических лиц при дистанционной оплате.
- Оплата по безналичному расчету — применяется для физических и юридических лиц. После зачисления денежных средств на расчетный счет, товар и полный пакет документов будут доставлены Вам согласованным способом в оговоренные сроки. Работаем с НДС!
- Покупка товаров в кредит — нажмите кнопку "Купить в кредит" в карточке товара и оформите заявку на кредит. Подробности у менеджеров.
Печи96 выполняет монтаж отопительного оборудования «под ключ» в Екатеринбурге и области. Все работы ведутся по нормам пожарной безопасности и СНиП, с применением сертифицированных материалов.
Этапы монтажа
- Выезд инженера и замер — консультация, оценка условий установки, рекомендации по размещению.
- Смета — расчет материалов и работ, фиксированная цена после согласования.
- Доставка — оборудование и комплектующие привозим на объект в день начала работ.
- Монтаж — установка печи, камина или котла, монтаж дымохода, изоляция перекрытий и стен, вывод через кровлю, при необходимости облицовка, короба, декоративная отделка.
- Сдача объекта — проверка работы системы, подписание акта выполненных работ.
Что вы получаете
- безопасную установку с соблюдением норм;
- фиксированную стоимость без скрытых расходов;
- сроки монтажа от 1 до 3 дней (в зависимости от сложности);
- гарантию 1 год на все виды работ;
- возможность сервисного обслуживания.
Чтобы заказать монтаж, оставьте заявку на сайте или позвоните нам по телефону +7 (343) 305-00-25. Инженер согласует удобное время выезда.
Не забудьте приобрести
-
Цена: 17 610 ₽Цена: 43 060 ₽Цена: 49 330 ₽Цена: 42 290 ₽Цена: 21 660 ₽Цена: 27 340 ₽Цена: 18 230 ₽Цена: 29 610 ₽
-
Цена: 2 900 ₽Цена: 3 608 ₽
Покупатели, которые приобрели Дровяной камин CHAZELLES Lodge с топкой VE1000, также купили
Рекомендуем посмотреть
Дровяной камин CHAZELLES Lodge с топкой VE1000 купить в Екатеринбурге по выгодной цене 529 000 руб.: подробное описание, характеристики, фото и отзывы реальных покупателей, возможность скачать инструкции по монтажу и подобрать аксессуары
Перед покупкой Дровяной камин CHAZELLES Lodge с топкой VE1000 вы можете проконсультироваться со специалистами ПЕЧИ96 по телефону +7 (343) 305-00-25 или закажите обратный звонок на сайте. Интернет-магазин ПЕЧИ96 — это гарантия низкой цены, оперативной доставки по Екатеринбургу, возможность покупки в кредит и качественного клиентского сервиса.



























